WOHNUNGSBAU
PLANEGG | JOSEF-BAYERL-STRASSE
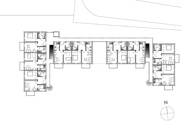
Neubau von 18 Wohnungen mit Tiefgarage
Josef-Beyerl-Straße
Bauherr:
Baugesellschaft München-Land GmbH
2015 - 2018
Eingabehilfen öffnen
Architekturbüro
Florentin Messner
Thea-Knorr-Str. 16
80999 München

Architekturbüro
Florentin Messner
Thea-Knorr-Str. 16
80999 München